XYN9-27.5户内箱型移开式交流金属封闭开关设备

发布单位:betway必威    发布日期: 2017-06-03


产品概述


XYN9-27.5户内箱型移开式交流金属封闭开关设备,是电气化铁道专用的成套配电装置,系单相交流50HZ的户内设备,供电气化铁道牵引变电所、开闭所、分区亭作为铁道干线电力牵引供电系统接受和分配电能之用。


产品特点


■ 节约变电所高压配电室的占地面积。
■ 根据用户需要,高压室可不设电缆沟,可减少若干预埋件,有效降低变电所造价。
■ 箱式开关设备,便于观察维护,防护等级高。
■ 灵活的工程设计理念,完善的一次线路设计方案。
■ 自动化程度高,可实现就地或远方遥控操作。


产品参数



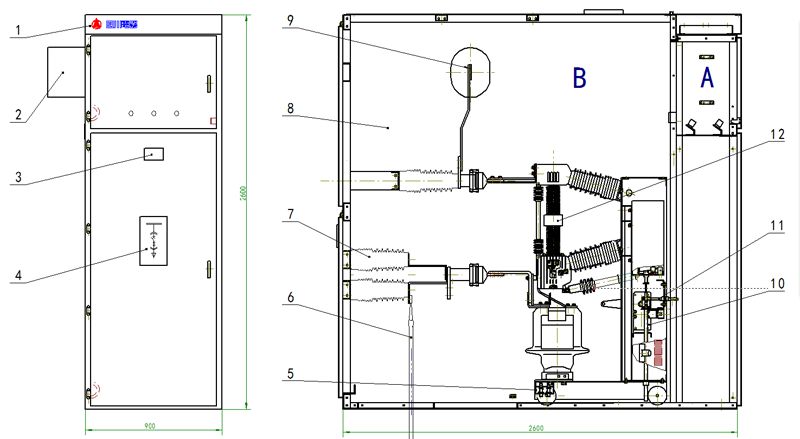
开关柜结构图


A 仪表室        B 高压室     
1 楣头      2 柜间套管      3 产品铭牌      4 模拟母线排     
5 接地母线      6 进出线电缆      7 支持绝缘子  8 高压室     
9 主母线      10 推进机构      11 连锁定位机构      12 真空断路器


用户在订货时应注明


a)断路器型号,名称及订货数量
b)断路器额定电压,额定电流及额定短路开断电流
c)额定操作电压
d)备品,备件的名称及数量
e)用户若有其他特殊需求,可在订货时说明
f)产品咨询电话:028-63155909



友情链接:betway必威集团中低压智能配电有限公司   百度一下     网站备案号: 蜀ICP备11255588号-1 分享到: